Habitat Concept > Construction maison / villa > Contemporaine / Moderne > Logement avec jardin 4 pièces 91m² à 377 640€
Retour

Logement avec jardin 4 pièces 91m² à 377 640€

Habitat Concept 83 et son partenaire foncier, vous propose un projet de construction sur le quartier MAUVEOU à la Seyne sur Mer, au prix de 377 640€
Les écoles maternelle et primaire sont accessibles à pied, la plage de Fabrégas et la forêt de Janas également.

Votre futur logement sera régit sous le régime de la copropriété.
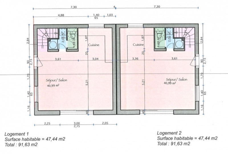
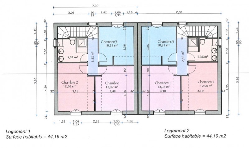
Ce dernier a une surface de 91m2 habitables, salon cuisine d'environ 41m2 avec 3 chambres à l'étage avec un extérieur d’environ 100m2.

Le prix affiché est calculé pour un produit clés en main, hormis peinture intérieur et la cuisine.
Notre société vous bâtit votre logement de façon traditionnelle avec des matériaux de qualité.

Exemple: carrelage 60cm x 60cm, baies coulissante dans le salon, volets électriques roulants et climatisation réversible dans le salon.

Cette construction ne sera pas soumis au régime du Contrat de Construction de Maison Individuelle (CCMI) du fait de la copropriété.

Prix affiché hors frais de Notaire, ouverture des compteurs et taxe lié au permis de construire.
Prix ferme et définitif après signature de votre marché

Contactez votre commercial, William 0686200264
Nous écrire
Les champs indiqués par un astérisque (*) sont obligatoires
Dernières normes & matériaux performants
Dernières normes & matériaux performants
Assurance Dommage-Ouvrage
Assurance Dommage-Ouvrage
Garantie de livraison à prix et délais convenu
Garantie de livraison à prix et délais convenu
10 ans de Garanties
10 ans de Garanties
Constructeur maison individuelle
Constructeur maison individuelle
Inscrivez-vous à la newsletter